


Professional Hotel Kitchen Equipment and Design: Chefmax's Excellence in Thailand
A modern and efficient hotel kitchen is vital for the smooth operation of any hotel. Chefmax recently assisted a hotel in Thailand with the construction of their kitchen, offering a comprehensive package of services that included one-stop solutions for hotel kitchen equipment and customized kitchen design. This case study will show how Chefmax seamlessly integrated professionalism into the project, swiftly delivering a perfect modern hotel kitchen.
High-Quality Comprehensive Equipment
The hotel client required an all-in-one solution that is quick and cost-effective. As a result, Chefmax's experienced project team began by selecting a full range of equipment based on the estimated dining capacity and menu requirements. This comprehensive product line streamlines the procurement process, saving our clients time and effort.
Our team provided all cooking equipment, including Chinese stoves, commercial gas ranges, stock pot ranges, steamers, and ovens, catering to diverse culinary needs and supporting the hotel's menu offerings. Meanwhile, refrigerators and refrigerated workstations ensured food safety and proper storage, while our customized dishwashing station, complete with tailored workbenches, sinks, and a hood-type dishwasher, provided a perfect finishing touch to the kitchen's hygiene and cleanliness.
Understanding the complexity of hotel kitchens, Chefmax not only provides equipment but also ensures that all products meet the highest industry standards and quality requirements. These appliances boast a full range of certifications, including CE, UL, and NSF, and undergo rigorous pre-factory inspections to guarantee long-term, high-quality performance. Sustainability and energy efficiency are also taken into account, contributing to reduced operational costs.


Customized Design: Safety and Efficiency
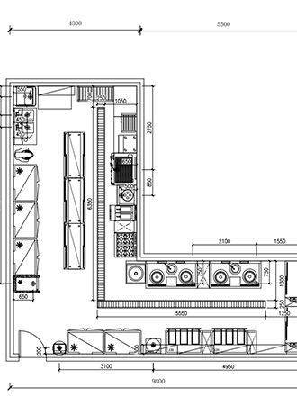
When it comes to small and medium-sized hotel kitchens, safe and efficient design is critical. In this project, our design process began with comprehensive on-site surveys and assessments to gain an in-depth understanding of the hotel's space layout and specific requirements. The designs provided by Chefmax focused on every detail, from the ventilation and drainage systems to electrical connections, ensuring the smooth operation of all areas.
By strategically planning the locations of entrances and service flows, we carefully designed the cooking, refrigeration, and cleaning areas. The shape of this hotel kitchen is L-shaped. To minimize the need for chefs to run and cross routes between the storage and cooking areas, the engineers designed two storage points, corresponding to the dish cooking area and the snack cooking area. The dishwashing station, marking the end of the kitchen service, was positioned furthest inside to avoid interrupting other processes.
Furthermore, we meticulously adhered to local fire regulations, gas usage requirements, and other relevant standards to ensure the safety and compliance of the hotel kitchen construction. We also provided 3D modeling design drawings for this project, enabling the client to have a clear visual representation of the entire kitchen layout. As of today, the kitchen is nearing successful completion and commissioning.
In summary, Chefmax's hotel kitchen project process highlights three major focal points. Advanced and comprehensive one-stop kitchen equipment; professional customized design ensuring efficiency and intuitiveness; strict compliance standards meeting safety requirements. These focal points collectively ensure that Chefmax's designs for hotel kitchens adhere to the highest standards and best practices.